大阪市内、中央区、北区、西区の貸店舗・貸事務所・賃貸オフィスビル等のテナント情報を多数掲載。大阪の事業用賃貸物件のことなら、貸店舗BEまで。

大阪貸店舗情報 大阪貸事務所情報 よくある質問Q&A 会社案内 物件リクエストビル管理運営
物件番号 55525 貸店舗
このページを印刷する

画像をクリックすると拡大されて表示されます。

所在地 大阪市北区天神橋3丁目
最寄駅 環状線 『 天満 』 5 分
谷町線 『 南森町 』 8 分
堺筋線 『 扇町 』 3 分
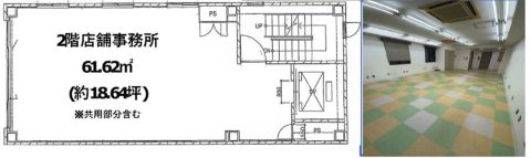
貸室 所在階 2 階部分  フロア 号室 構造 鉄骨造  5階建
契約面積 18.64 坪・ 61.62 u 築年数 1995/3 【新耐震基準】  リニューアル
賃貸条件 坪単価 総額
敷金  2ヶ月  2ヶ月
賃料  13,656 円/坪  254,545 円
共益費  賃料に含む  賃料に含む
月額合計  13,656  254,545
上記、金額は募集条件です。
  条件交渉など、詳細についてはお問合せ下さい。
TEL : 06-6732-8217

賃料・共益費には別途、消費税が必要になります。

■取引態様:仲介
■広告作成中に契約済みの場合はご容赦下さい。
■図面等現況が相違する場合は現況優先にてご容赦下さい。
設備概要
エレベーター
駐車場
空調設備  
使用時間  24時間使用可
セキュリティー  
フロアー仕様
光ケーブル -
駐輪場 -
備 考 天神橋商店街に面した店舗&オフィスの1棟貸(各階、フロア貸もOK!)
 

このページを印刷する
カテゴリー別 貸店舗情報
■大通り沿い貸店舗
■エステ・美容院・クリニック向き貸店舗
■商店街貸店舗
■飲食貸店舗
■居抜き貸店舗
■物販向け貸店舗
大阪市北区の貸店舗
■梅田・北新地
■天神橋六丁目・扇町・天満
■南森町・大阪天満宮
■中津・中崎町
大阪市中央区の貸店舗
■淀屋橋・本町
■心斎橋・なんば
■北浜・堺筋本町
■長堀橋・日本橋
■天満橋・谷町四丁目
■谷町六丁目・谷町九丁目
大阪市西区の貸店舗
■肥後橋・本町
■四ツ橋・なんば
■西大橋・西長堀
■阿波座・九条
大阪市福島区の貸店舗
大阪市浪速区・天王寺区
の貸店舗
大阪市その他の貸店舗
大阪市の貸事務所

ご紹介


最終更新日:2026/03/04

貸事務所 大阪は賃貸オフィスサービス

梅田専門の賃事務所・賃貸オフィスなら【Be】

本町 専門の賃事務所・賃貸オフィスなら【本町Be】

心斎橋 専門の賃事務所・賃貸オフィスなら【心斎橋Be】