大阪市内、中央区、北区、西区の貸店舗・貸事務所・賃貸オフィスビル等のテナント情報を多数掲載。大阪の事業用賃貸物件のことなら、貸店舗BEまで。

大阪貸店舗情報 大阪貸事務所情報 よくある質問Q&A 会社案内 物件リクエストビル管理運営
物件番号 54664 貸事務所
このページを印刷する

画像をクリックすると拡大されて表示されます。

名称 ルセオン博労町
所在地 大阪市中央区博労町3丁目
最寄駅 御堂筋線 『 本町 』 7 分
御堂筋線 『 心斎橋 』 7 分
堺筋線 『 堺筋本町 』 7 分
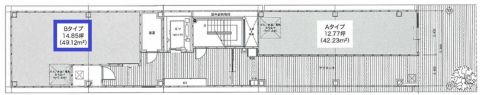
貸室 所在階 1 階部分  B 号室 構造 鉄骨造  10階建
契約面積 14.85 坪・ 49.09 u 築年数 2025/9 【新耐震基準】  リニューアル
賃貸条件 坪単価 総額
保証金  230,000 円/坪  3,415,500 円
賃料  23,000 円/坪  341,550 円
共益費  2,000 円/坪  29,700 円
月額合計  25,000  371,250
上記、金額は募集条件です。
  条件交渉など、詳細についてはお問合せ下さい。
TEL : 06-6732-8217

賃料・共益費には別途、消費税が必要になります。

■取引態様:仲介
■広告作成中に契約済みの場合はご容赦下さい。
■図面等現況が相違する場合は現況優先にてご容赦下さい。
設備概要
エレベーター
駐車場
空調設備 個別空調 
使用時間  24時間使用可
セキュリティー 機械警備 
フロアー仕様 OAフロア
光ケーブル
駐輪場 -
備 考 心斎橋駅・本町駅・長堀橋駅・堺筋本町駅、4線利用”利便性抜群の新築ビル!
 

このページを印刷する
カテゴリー別 貸店舗情報
■大通り沿い貸店舗
■エステ・美容院・クリニック向き貸店舗
■商店街貸店舗
■飲食貸店舗
■居抜き貸店舗
■物販向け貸店舗
大阪市北区の貸店舗
■梅田・北新地
■天神橋六丁目・扇町・天満
■南森町・大阪天満宮
■中津・中崎町
大阪市中央区の貸店舗
■淀屋橋・本町
■心斎橋・なんば
■北浜・堺筋本町
■長堀橋・日本橋
■天満橋・谷町四丁目
■谷町六丁目・谷町九丁目
大阪市西区の貸店舗
■肥後橋・本町
■四ツ橋・なんば
■西大橋・西長堀
■阿波座・九条
大阪市福島区の貸店舗
大阪市浪速区・天王寺区
の貸店舗
大阪市その他の貸店舗
大阪市の貸事務所

ご紹介


最終更新日:2025/10/22

貸事務所 大阪は賃貸オフィスサービス

梅田専門の賃事務所・賃貸オフィスなら【Be】

本町 専門の賃事務所・賃貸オフィスなら【本町Be】

心斎橋 専門の賃事務所・賃貸オフィスなら【心斎橋Be】